3+1 bedroom villa near the beach | Garage + private patio | Panoramic terrace over the sea

495 000€

  • 3
  • 3
  • 3
  • Usable: 156m2
  • Floor: 220m2
  • C.E.: A+
  • Year: 2025
  • Ref: 66304-TEAM60654

Location

Leiria, Peniche, Atouguia da Baleia, Alto do Veríssimo

Description

Between the blue of the Atlantic and the tranquillity of a recent neighborhood, this modern 3+1 bedroom villa is born, with a panoramic terrace and sea views.
With its contemporary architecture, closed garage, private patio with barbecue and excellent sun exposure, it is ideal for those looking for space, comfort and quality of life.

Located in an area of new villas, just a few minutes from the beaches of Baleal (4 km), Consolação (6 km) and the center of Peniche (7 km).
Excellent access to the A8 (20 km) and Lourinhã (5 km).

220 m² of construction | 197 m² plot | 3 floors | Attic with storage and terrace.
Perfect for living by the sea or as a weekend retreat.

Contact us and come and see the place where your new home can begin.

Attributes

  • Sea view
  • Vista Desafogada
  • Good Solar Exposure

Divisions

Blueprints

Floor name: Rés-do-Chão

Division Area Note
Open Space 48.04m2
WC 3.42m2
Office 10.24m2

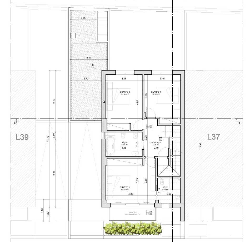
Floor name: 1º Andar

Division Area Note
Bedroom 15.02m2
Bedroom 12.57m2
WC 6.61m2
Suite 20.75m2

Floor name: 2º Andar

Division Area Note
Attic 14.95m2
Balcony